Skip to main content
  • ConceptSystem 77 Vrata, ConceptPatio 68 Klizni sistemi и HiFinity Klizni sistemi - Casa Las Palmeras налази се уSpain
  • ConceptSystem 77 Vrata, ConceptPatio 68 Klizni sistemi и HiFinity Klizni sistemi - Casa Las Palmeras налази се уSpain
  • ConceptSystem 77 Vrata, ConceptPatio 68 Klizni sistemi и HiFinity Klizni sistemi - Casa Las Palmeras налази се уSpain
  • ConceptSystem 77 Vrata, ConceptPatio 68 Klizni sistemi и HiFinity Klizni sistemi - Casa Las Palmeras налази се уSpain
  • ConceptSystem 77 Vrata, ConceptPatio 68 Klizni sistemi и HiFinity Klizni sistemi - Casa Las Palmeras налази се уSpain

Casa Las Palmeras

Spain - 2014

Designed by architect Valentín de Madariaga for his northern European client, Casa Las Palmeras effortlessly combines traditional elements with a sleek, modern aspect. The streetside façade is as solid and intriguing as the Moorish homes of ‘Al-Andalus’ (historical territory in southern Spain, when it was part of the Islamic empire), while the construction and geometry radiate a contemporary serenity and openness similar to the ambience of a 21st-century monastery.

“Some time ago, an English client of mine at the time introduced me to feng shui, a Chinese art form which I try to apply to the Spanish landscape,” explains Valentín de Madariaga. “For me, feng shui is about the relationship between the environment and sunlight, and the creation of peace and harmony.” Foremost in the design of Casa Las Palmeras was the plot of land. De Madariaga explains: “The terrain determined where to position the six different columns, what their proportions would be, and where to put the garden elements.”

 

“The palms alongside the swimming pool make swimming lengths even more enjoyable, and the bamboo around the garden’s edges creates an intimate setting.” Like the architect, the resident of Casa Las Palmeras is an avid contemporary art lover. The ‘backbone’ of the residence, which threads together the structure and its various functions, is a long corridor that is used to display the owner’s personal art collection in varying formations. Indirect daylight illuminates the paintings along this corridor, which proceeds from the gymnasium to the dining and living areas, and then extends to the service areas and bedrooms of the parents and children. In total, the residence comprises 1,200 square metres. The various rooms are all oriented toward the covered terraces, which form a connection to the lawn.

ConceptSystem 77 Vrata, ConceptPatio 68 Klizni sistemi и HiFinity Klizni sistemi - Casa Las Palmeras налази се уSpain

A smooth transition from interior to exterior is created with full glass Hi-Finity sliding doors

Smooth transition

People in this region spend a great deal of their time outdoors. The outdoor areas which flank the garden and the shaded galleries may be even more important than the functional interior spaces. A smooth transition from interior to exterior is created, with no less than 18 full glass Hi-Finity sliding doors providing a razor-thin separation between the two. The gymnasium’s sliding doors that were specifically designed for this project, together with partner Grupo Moncada, are imposing. As De Madariaga recounts: “It was an enormous challenge to position them during construction. Luckily, we were quickly able to replace one of the four glass elements, which was broken by a strong gust of wind. Reynaers equipped these elements with a motorised mechanism to open and close them, because they’re incredibly heavy!” “These specially designed doors are 5.9 metres high and weigh 285 kilograms. We produced and positioned the replacement vent within a week and a half”, says fabricator José Miguel Moncada of Grupo Moncada.

ConceptSystem 77 Vrata, ConceptPatio 68 Klizni sistemi и HiFinity Klizni sistemi - Casa Las Palmeras налази се уSpain

The entire façade is equipped with Hi-finity sliding elements for a maximum view of the garden

‘”In any event, the pace of construction forced us to finish in record time; the entire project was completed in nine months.” The Hi-Finity sliding elements positioned by Grupo Moncada play a fundamental role in relation to the environment. That is why the tracks were set deeply into the floor at specific points, with the top and side profiles integrated into the walls. The only thing that remains visible is the meeting section of the minimalistic Hi-Finity profiles.

 

Viewed from the outside, the glass acts like mirrors reflecting the surroundings. Framed by the residence’s white profiles, the blurry image of the terraces and the vegetation almost creates a new modern painting: the latest asset in the owner’s collection.

Large Hi-Finity sliding doors provide no more than a razorthin separation between interior and exterior

José Miguel Moncada (Grupo Moncada)
ConceptSystem 77 Vrata, ConceptPatio 68 Klizni sistemi и HiFinity Klizni sistemi - Casa Las Palmeras налази се уSpain
José Miguel Moncada (Grupo Moncada)
Fabricators
José Miguel Moncada (Grupo Moncada)

José Miguel Moncada was born in 1970 in San Roque and leads Grupo Moncada, the family-run business established by his father nearly sixty years ago. José Miguel Moncada is an electrical engineerwho also holds a master’s degree in business administration. He expanded the business from its initial focus on wooden doors and window frames into a versatile supplier for the construction sector. The experienced team is continuously introducing new technologies in their factory, which is equipped with state-of the-art machinery. Today they produce furniture along with complex curtain walls and aluminium window frames, the latter exclusively in partnership with Reynaers. “Experience and incorporation of innovative products are key to the success of our projects”, he says.

ConceptSystem 77 Vrata, ConceptPatio 68 Klizni sistemi и HiFinity Klizni sistemi - Casa Las Palmeras налази се уSpain
Valentín de Madariaga
Architects
Valentín de Madariaga

 Valentín de Madariaga was born in 1960 in Seville. After studying architecture at Escuela Técnica Superior de Madrid (Superior Technical School of Architecture Madrid) he set out, together with Ernesto Merello, on a quest in 1987 to combine traditional and modern architecture. De Madariaga quickly specialised in highstanding, detached houses with the so-called ‘hacienda typology’ representative of his native region, Andalusia. In addition to around 150 private houses, he has designed golf clubs, restaurants, and swimming pools. He has also restored historical heritage sites such as churches. ‘The environment is a decisive factor in the development of architecture, and that translates into proportions, materials, temperature, light, and sound, and then into experiences,’ says De Madariaga.

ConceptSystem 77 Vrata, ConceptPatio 68 Klizni sistemi и HiFinity Klizni sistemi - Casa Las Palmeras налази се уSpain

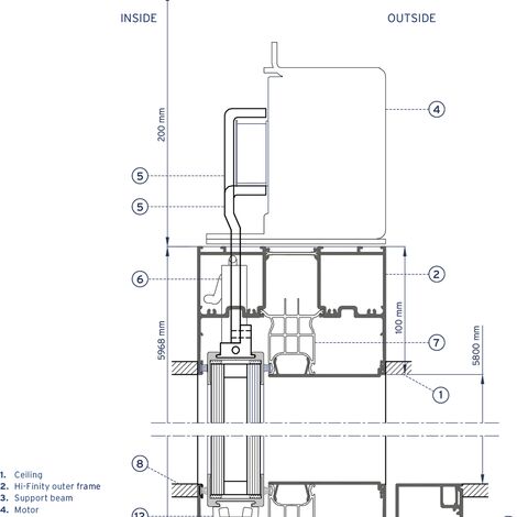
Horizontal section Hi-Finity bespoke meeting section

Project solution

System: Hi-Finity bespoke solution

Project description:

  • External motor mounted on top of frame (20 cm required built-in-depth)
  • Special connection from motor to the moving parts of the vents
  • Bespoke middle section: double reinforcement profile to support high loads
  • Extensive research on the strength and sizes

Element:

  • Four vent Hi-Finity sliding door with centre opening
  • Dimensions 5.9 x 1.25 m per vent
  • Weight per vent: 285 kg

Glazing:

  • Double laminated glazing: 44.1/20/44.1
ConceptSystem 77 Vrata, ConceptPatio 68 Klizni sistemi и HiFinity Klizni sistemi - Casa Las Palmeras налази се уSpain

Vertical section Hi-Finity bespoke solution

Involved stakeholders

Fabricator

  • Moncada Aluminium

Fotograf

  • Claudio Curia

Ostali stejkholderi

  • Sander Laudy (Authors)